Działka na sprzedaż
330 000 zł
4 716 m2












1 / 12
Szczegóły ogłoszenia
- Symbol oferty PKN-
- Typ oferty działka na sprzedaż
- Cena 330 000 zł
- Charakterystyka mieszkania 4716 m2
- Media Prąd: w ulicy
- Bezpieczeństwo ogrodzenie działki: brak
- Dojazd asfalt
- Działka Niezagospodarowana, płaska, prostokąt
- Otoczenie jezioro
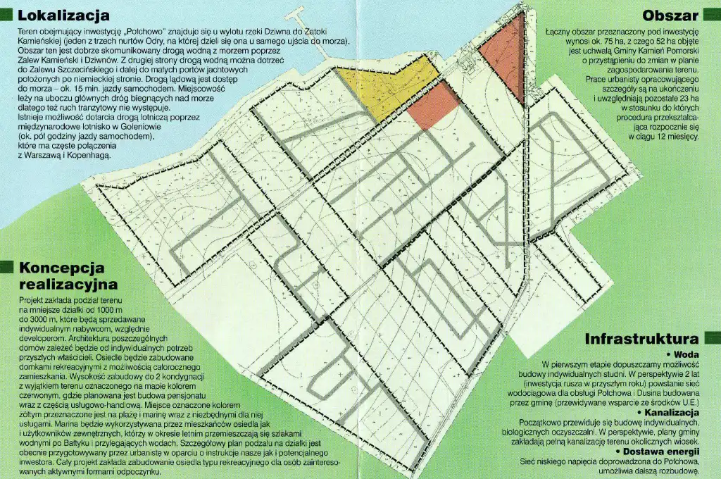
Lokalizacja
- Adres zachodniopomorskie, kamieński
Opis nieruchomości
działka o powierzchni 4716m2 z wydanymi warunkami zabudowy pod pensjonat.
Dodatkowo działki o powierzchni od 1250m2 w kompleksie działek z wydanymi warunkami zabudowy lub objętych MPZP oraz rolnych. MPZP lub warunki zabudowy mówią o przeznaczeniu działek pod domy rekreacyjne z możliwością całorocznego zamieszkania, pod pensjonaty o wysokości do 3 kondygnacji i usługi związane z turystyką.
Lokalizacja:
Teren umiejscowiony jest u wylotu rzeki Dziwna do Zatoki Kamieńskiej (jeden z 3 ujść Odry do Bałtyku). Obszar dobrze skomunikowany wodnie z morzem i Zalewem Szczecińskim, drogowo- z drogą krajową do Kamienia Pomorskiego oraz w pobliżu budowanej S3 do Świnoujścia. Teren leży na uboczu głównych dróg prowadzących do morza co gwarantuje spokój, ale na tyle blisko aby można było łatwo dojechać do kompleksu działek drogą asfaltową.
Koncepcja realizacji:
w sąsiedztwie działki mogą być podzielone na 1200 do 3000m2 dla indywidualnych klientów lub większe dla developerów (indywidualne warunki negocjacji). Osiedle będzie zabudowane domkami rekreacyjnymi z możliwością zamieszkiwania całorocznego, pensjonatami, częścią usługowo-handlową, mariną z pirsami do cumowania łodzi i ogólnodostępną plażą. Marina ma być wykorzystywana przez właścicieli z osiedla oraz użytkowników tras wodnych. Obecnie są już budynki pensjonatowe działające.
Infrastruktura:
W pierwszym etapie dopuszczona jest budowa własnych studni oraz biologicznych oczyszczalni. W perspektywie 2 lat powstanie rurociąg wodny i kanalizacyjny obsługujące teren i okolicę budowane przez gminę ze wsparciem środków UE. Sieć niskiego napięcia jest doprowadzona do kompleksu działek (nowy transformator).
Otoczenie:
Dostęp do morza, Zatoki Kamieńskiej i Zalewu Szczecińskiego daje duże możliwości uprawiania sportów wodnych oraz innych form rekreacji. W pobliżu znajdują się 2 pełnowymiarowe pola golfowe (Kołczewo, Łukęcin), ośrodki uzdrowiskowe w Kamieniu Pomorskim, Woliński Park Narodowy i liczne miejscowości wypoczynkowe.
Przy zakupie większych powierzchni możliwość indywidualnych negocjacji.
Wszystkie oferty na nieruchomosci-online
Dodatkowo działki o powierzchni od 1250m2 w kompleksie działek z wydanymi warunkami zabudowy lub objętych MPZP oraz rolnych. MPZP lub warunki zabudowy mówią o przeznaczeniu działek pod domy rekreacyjne z możliwością całorocznego zamieszkania, pod pensjonaty o wysokości do 3 kondygnacji i usługi związane z turystyką.
Lokalizacja:
Teren umiejscowiony jest u wylotu rzeki Dziwna do Zatoki Kamieńskiej (jeden z 3 ujść Odry do Bałtyku). Obszar dobrze skomunikowany wodnie z morzem i Zalewem Szczecińskim, drogowo- z drogą krajową do Kamienia Pomorskiego oraz w pobliżu budowanej S3 do Świnoujścia. Teren leży na uboczu głównych dróg prowadzących do morza co gwarantuje spokój, ale na tyle blisko aby można było łatwo dojechać do kompleksu działek drogą asfaltową.
Koncepcja realizacji:
w sąsiedztwie działki mogą być podzielone na 1200 do 3000m2 dla indywidualnych klientów lub większe dla developerów (indywidualne warunki negocjacji). Osiedle będzie zabudowane domkami rekreacyjnymi z możliwością zamieszkiwania całorocznego, pensjonatami, częścią usługowo-handlową, mariną z pirsami do cumowania łodzi i ogólnodostępną plażą. Marina ma być wykorzystywana przez właścicieli z osiedla oraz użytkowników tras wodnych. Obecnie są już budynki pensjonatowe działające.
Infrastruktura:
W pierwszym etapie dopuszczona jest budowa własnych studni oraz biologicznych oczyszczalni. W perspektywie 2 lat powstanie rurociąg wodny i kanalizacyjny obsługujące teren i okolicę budowane przez gminę ze wsparciem środków UE. Sieć niskiego napięcia jest doprowadzona do kompleksu działek (nowy transformator).
Otoczenie:
Dostęp do morza, Zatoki Kamieńskiej i Zalewu Szczecińskiego daje duże możliwości uprawiania sportów wodnych oraz innych form rekreacji. W pobliżu znajdują się 2 pełnowymiarowe pola golfowe (Kołczewo, Łukęcin), ośrodki uzdrowiskowe w Kamieniu Pomorskim, Woliński Park Narodowy i liczne miejscowości wypoczynkowe.
Przy zakupie większych powierzchni możliwość indywidualnych negocjacji.
Wszystkie oferty na nieruchomosci-online
Nota prawna
Opis oferty zawarty na stronie internetowej sporządzany jest na podstawie oględzin nieruchomości oraz informacji uzyskanych od właściciela, może podlegać aktualizacji i nie stanowi oferty określonej w art. 66 i następnych K.C.
Kalkulator kredytowy
Formularz kontaktowy