Działka na sprzedaż
6 600 000 zł
110 000 m2












1 / 12
Szczegóły ogłoszenia
- Symbol oferty PKN-
- Typ oferty działka na sprzedaż
- Cena 6 600 000 zł
- Charakterystyka mieszkania 110000 m2
- Bezpieczeństwo ogrodzenie działki: brak
- Dojazd asfalt
- Działka Niezagospodarowana, płaska, prostokąt
- Otoczenie las
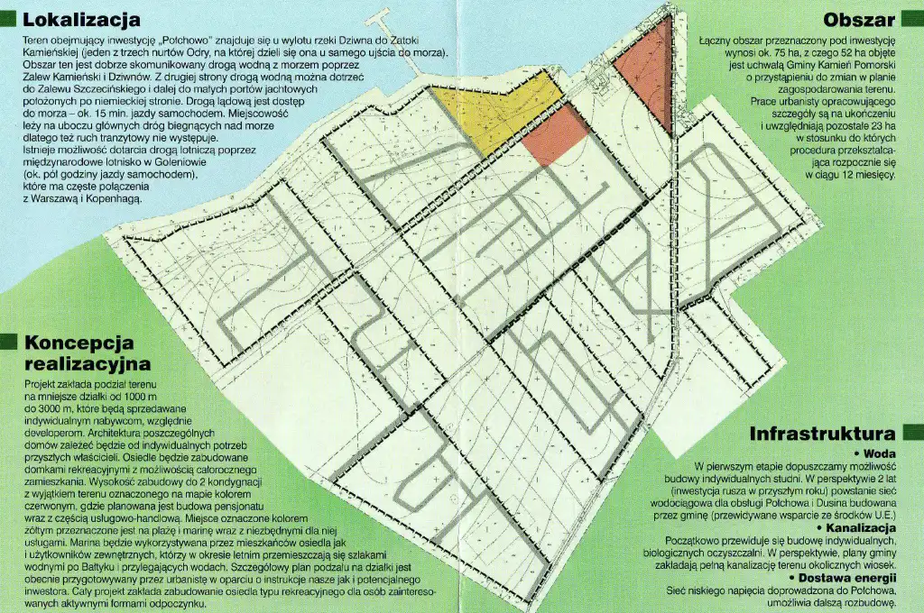
Lokalizacja
- Adres zachodniopomorskie, kamieński
Opis nieruchomości
Działki objęte tą ofertą są w dwóch blokach po około 4,7ha i 6,1ha. Możliwość sprzedaży tych obszarów oddzielnie.
Te działki jeszcze są rolne ale graniczą z działkami objętymi miejscowym planem zagospodarowania przestrzennego pod zabudowę mieszkaniową i rekreacyjną. Objęte są studium uwarunkowań i rozwoju o takim samy przeznaczeniu co umożliwia staranie się o uchwalenie miejscowego planu lub wydanie warunków zabudowy.
W sąsiedztwie są działki w zwartym kompleksie o powierzchniach od 1250m2 o łącznym areale jeszcze około 4ha objęte miejscowym planem zagospodarowania przestrzennego pod zabudowę mieszkaniową jednorodzinną oraz budynkami gospodarczymi. Jedna działka o powierzchni powierzchni 4716m2 z wydanymi warunkami zabudowy na pensjonat.
Lokalizacja:
Teren umiejscowiony jest u wylotu rzeki Dziwna do Zatoki Kamieńskiej (jeden z 3 ujść Odry do Bałtyku). Obszar dobrze skomunikowany wodnie z morzem i Zalewem Szczecińskim, drogowo- z drogą krajową do Kamienia Pomorskiego oraz w pobliżu budowanej S3 do Świnoujścia. Teren leży na uboczu głównych dróg prowadzących do morza co gwarantuje spokój, ale na tyle blisko aby można było łatwo dojechać do kompleksu działek drogą asfaltową.
Koncepcja realizacji:
Działki sąsiednie mogą być podzielone na 1200 do 3000m2 dla indywidualnych klientów lub większe dla developerów. Osiedle będzie zabudowane domkami rekreacyjnymi z możliwością zamieszkiwania całorocznego, pensjonatami, częścią usługowo-handlową, mariną z pirsami do cumowania łodzi i ogólnodostępną plażą. Marina ma być wykorzystywana przez właścicieli z osiedla oraz użytkowników tras wodnych.
Infrastruktura:
W pierwszym etapie dopuszczona jest budowa własnych studni oraz biologicznych oczyszczalni. W perspektywie 2 lat powstanie rurociąg wodny i kanalizacyjny obsługujące teren i okolicę budowane przez gminę ze wsparciem środków UE. Sieć niskiego napięcia jest doprowadzona do wsi sąsiadującej z terenem oferty z możliwością rozbudowy.
Otoczenie:
Dostęp do morza, Zatoki Kamieńskiej i Zalewu Szczecińskiego daje duże możliwości uprawiania sportów wodnych oraz innych form rekreacji. W pobliżu znajdują się 2 pełnowymiarowe pola golfowe (Kołczewo, Łukęcin), ośrodki uzdrowiskowe w Kamieniu Pomorskim, Woliński Park Narodowy i liczne miejscowości wypoczynkowe.
Możliwość zakupu w kompleksie innych działek w cenach uzależnionych od wielkości i odległości od wody.
Wszystkie oferty na nieruchomosci-online
Te działki jeszcze są rolne ale graniczą z działkami objętymi miejscowym planem zagospodarowania przestrzennego pod zabudowę mieszkaniową i rekreacyjną. Objęte są studium uwarunkowań i rozwoju o takim samy przeznaczeniu co umożliwia staranie się o uchwalenie miejscowego planu lub wydanie warunków zabudowy.
W sąsiedztwie są działki w zwartym kompleksie o powierzchniach od 1250m2 o łącznym areale jeszcze około 4ha objęte miejscowym planem zagospodarowania przestrzennego pod zabudowę mieszkaniową jednorodzinną oraz budynkami gospodarczymi. Jedna działka o powierzchni powierzchni 4716m2 z wydanymi warunkami zabudowy na pensjonat.
Lokalizacja:
Teren umiejscowiony jest u wylotu rzeki Dziwna do Zatoki Kamieńskiej (jeden z 3 ujść Odry do Bałtyku). Obszar dobrze skomunikowany wodnie z morzem i Zalewem Szczecińskim, drogowo- z drogą krajową do Kamienia Pomorskiego oraz w pobliżu budowanej S3 do Świnoujścia. Teren leży na uboczu głównych dróg prowadzących do morza co gwarantuje spokój, ale na tyle blisko aby można było łatwo dojechać do kompleksu działek drogą asfaltową.
Koncepcja realizacji:
Działki sąsiednie mogą być podzielone na 1200 do 3000m2 dla indywidualnych klientów lub większe dla developerów. Osiedle będzie zabudowane domkami rekreacyjnymi z możliwością zamieszkiwania całorocznego, pensjonatami, częścią usługowo-handlową, mariną z pirsami do cumowania łodzi i ogólnodostępną plażą. Marina ma być wykorzystywana przez właścicieli z osiedla oraz użytkowników tras wodnych.
Infrastruktura:
W pierwszym etapie dopuszczona jest budowa własnych studni oraz biologicznych oczyszczalni. W perspektywie 2 lat powstanie rurociąg wodny i kanalizacyjny obsługujące teren i okolicę budowane przez gminę ze wsparciem środków UE. Sieć niskiego napięcia jest doprowadzona do wsi sąsiadującej z terenem oferty z możliwością rozbudowy.
Otoczenie:
Dostęp do morza, Zatoki Kamieńskiej i Zalewu Szczecińskiego daje duże możliwości uprawiania sportów wodnych oraz innych form rekreacji. W pobliżu znajdują się 2 pełnowymiarowe pola golfowe (Kołczewo, Łukęcin), ośrodki uzdrowiskowe w Kamieniu Pomorskim, Woliński Park Narodowy i liczne miejscowości wypoczynkowe.
Możliwość zakupu w kompleksie innych działek w cenach uzależnionych od wielkości i odległości od wody.
Wszystkie oferty na nieruchomosci-online
Nota prawna
Opis oferty zawarty na stronie internetowej sporządzany jest na podstawie oględzin nieruchomości oraz informacji uzyskanych od właściciela, może podlegać aktualizacji i nie stanowi oferty określonej w art. 66 i następnych K.C.
Kalkulator kredytowy
Formularz kontaktowy