Mieszkanie na sprzedaż






Szczegóły ogłoszenia
- Symbol oferty SPEK-MS-3267
- Typ oferty mieszkanie na sprzedaż
- Cena 1 796 000 zł
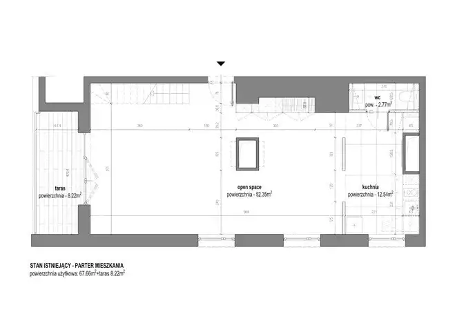
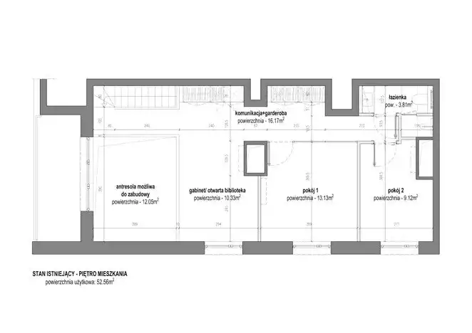
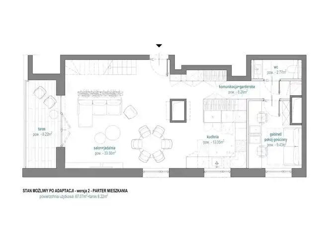
- Charakterystyka mieszkania 120 m2, 5 pokoi
- Rozkład mieszkania 14p piętro
- Umeblowanie do uzgodnienia
- Winda Tak
Lokalizacja
- Adres małopolskie, Kraków
Opis nieruchomości
Apartament z widokiem na Tatry | 120m2 |
Przepiękne dwupoziomowe mieszkanie zlokalizowane na 2 ostatnich kondygnacjach XV kondygnacyjnego budynku. Ekspozycja południowo-wschodnia z dużym balkonem i widokiem na Tatry oraz cała panoramę Krakowa.
Z uwagi na już zrealizowana niższa zabudowę widok ten nie będzie nigdy zasłonięty!
Mieszkanie posiada wyposażone dwie łazienki, aneks kuchenny, okładziny ścian, sufity podwieszane wraz z wbudowanym oświetleniem, rozprowadzone wszystkie instalacje w tym ethernet, AV. Zwiększona moc przyłączeniowa. Mieszkanie posiada ultra szybkie i stabilne łącze światłowodowe.
W mieszkaniu została zainstalowana klimatyzacja z 5 jednostkami wewnętrznymi i jednostka zewnętrzna na dachu (z opcja grzania) która nie generuje hałasu dla mieszkańców, a także instalacje wbudowanego nagłośnienia sufitowego i serwer muzyki.
Od południa znajduje się spory wykończony drewnem taras. Duże okna osłonięte zewnętrzna, elektryczną żaluzją.
Niezwykle reprezentacyjny salon o wysokości dwóch kondygnacji z możliwością zabudowania antresoli na potrzebę organizacji kolejnego pokoju. Możliwa do uzyskania w ten sposób dodatkowa powierzchnia powiększa całość do aż 131m2. Na parterze istnieje możliwość wydzielenia gabinetu / pomieszczenia do pracy / pokoju gościnnego zaś na piętrze możliwość organizacji do 3 pokoi, osobnej dużej szafy ubraniowej oraz bardzo dużej łazienki.
Do mieszkania dostępne są do zakupu dwa miejsca postojowe w garażu podziemnym oraz komórka lokatorska (możliwość zakupu razem z mieszkaniem lub osobno).
LOKALIZACJA
Lokalizacja zapewnia dobrą infrastrukturę usługowo-handlową.
Dobre połączenia komunikacyjne.
CENA: 1 796 000 zł
KONTAKT W SPRAWIE OFERTY: Patrycja Kuczma
537-440-045
Biuro Spektrum s.c ; ul. Lea 16/1 30-048 Kraków
Finansuj zakup nieruchomości z naszymi specjalistami.
Pośrednik odpowiedzialny zawodowo za wykonanie umowy pośrednictwa - Nr Licencji 5989
Więcej ofert na stronie:
https://www.spektrum.krakow.pl/
ZAPRASZAMY!
Oferty zamieszczone na naszych stronach internetowych nie stanowią oferty w rozumieniu kodeksu cywilnego