Mieszkanie na sprzedaż


Szczegóły ogłoszenia
- Symbol oferty SPEK-MS-3133
- Typ oferty mieszkanie na sprzedaż
- Cena 443 000 zł
- Charakterystyka mieszkania 38.49 m2, 2 pokoje
- Budynek blok; rok budowy: 2022
- Rozkład mieszkania 3p piętro
- Media Ogrzewanie: podłogowe; Woda: piec gazowy dwufunkcyjny; Gaz: jest
- Dojazd ASFALTOWA
- Garaż garaż pod budynkiem
- Ilość sypialni 1
- Instalacje nowe
- Okna PCV
- Otoczenie zabudowa mieszana
- Stan lokalu deweloperski
- Taras taras
- Technologia budowlana ceramika
- Umeblowanie brak
- Winda Tak
Lokalizacja
- Adres małopolskie, Kraków
Opis nieruchomości
PODGÓRZE NOWE STAN DEWELOPERSKI 2 POKOJE TARAS GARAŻ
MIESZKANIE
Oferujemy Państwu bardzo atrakcyjne mieszkanie w stanie deweloperskim do wykończenia . Mieszkanie znajduje się na 3 piętrze w nowym 4-o piętrowym bloku z windą z 2022 roku .
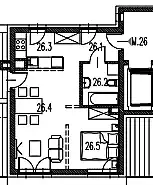
Na metraż 38,49 m2 składa się :
pokój dzienny 15,96 m2
pokój sypialnia 8,90 m2
kuchnia 6,22 m2
łazienka 4,28 m2
hall 3,13 m2
Dodatkowo mieszkanie posiada taras 17,01 m2 , miejsce parkingowe w garażu podziemnym ( dodatkowo płatne ) Możliwość kupienia komórki lokatorskiej .
We wszystkich mieszkaniach ciepła woda oraz ogrzewanie podłogowe z pieca gazowego dwufunkcyjnego , co sprawia że mieszkania są bardzo ekonomiczne w utrzymaniu .
LOKALIZACJA
Blok zlokalizowany przy ulicy Myśliwskiej w Podgórzu .
Zaciszne miejsce wśród zabudowy mieszanej .
W pobliżu komunikacja miejska w każdą stronę Krakowa , szkoła , przedszkole , sklepy , restauracje , bardzo dobrze rozwinięta infrastruktura handlowo – usługowa .
Na miejscu znajduje się Park Myśliwska z dużym placem zabaw dla dzieci .
Blisko do centrum miasta a zarazem w zacisznym miejscu , w większości w sąsiedztwie przeważa zabudowa jednorodzinna .
Oferta dostępna tylko w Naszym Biurze !!!!
CENA : 443 000 zł
Serdecznie polecam i zapraszam do oglądania!
Finansuj zakup nieruchomości z naszymi specjalistami. Wybierz spośród oferty najlepszych banków, aby uzyskać najniższą marżę, optymalny okres kredytowania, brak prowizji i dodatkowych produktów zwiększających koszt kredytu.
Nasi doradcy zapewnią wsparcie i przeprowadzą Cię krok po kroku przez całą procedurę.
KONTAKT W SPRAWIE OFERTY Małgorzata Wawrzyniak tel.533-535-561 Biuro Spektrum s.c ; ul. Lea 16/1 30-048 Kraków
Pośrednik odpowiedzialny zawodowo za wykonanie umowy pośrednictwa - Nr Licencji 5989
Więcej ofert na stronie Spektrum Nieruchomości
ZAPRASZAMY
Oferty zamieszczone na naszych stronach internetowych nie stanowią oferty w rozumieniu kodeksu cywilnego.