Mieszkanie na sprzedaż













Szczegóły ogłoszenia
- Symbol oferty SPEK-MS-3219
- Typ oferty mieszkanie na sprzedaż
- Cena 455 000 zł
- Charakterystyka mieszkania 49.3 m2, 2 pokoje
- Budynek blok; rok budowy: 1975
- Rozkład mieszkania 3p piętro
- Media Ogrzewanie: c.o. miejskie; Woda: tak - miejska; Gaz: jest
- Dojazd ASFALTOWA
- Instalacje dobre
- Okna PCV
- Otoczenie park
- Stan lokalu do odnowienia
- Technologia budowlana BETON
- Umeblowanie częściowo umeblowane
Lokalizacja
- Adres małopolskie, Kraków
Opis nieruchomości
POLECAMY !!! TYLKO U NAS ! Mieszkanie 2 pokojowe 49,3 m2 z widokiem na Park - ul. Wincentego Witosa (dzielnica: Wola Duchacka)
Mieszkanie usytuowany jest na 3 piętrze w 4 piętrowym bloku z lat 70. Budynek jest odnowiony i zadbany.
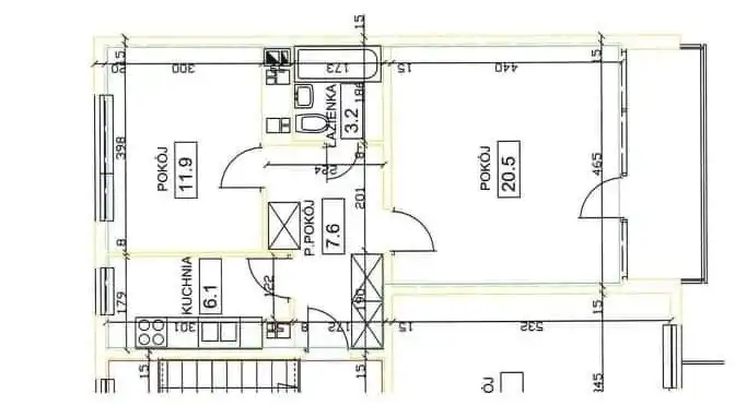
Lokal składa się z Salonu (20,5m2), Sypialni (11,9m2), jasnej Kuchni (6,1m2), Łazienki (3,2m2) oraz Przedpokoju (7,6m2). Do mieszkania przynależy również duża Loggia (7m2) oraz Piwnica (2,3m2), miejsca parkingowe dla mieszkańców sąsiadują bezpośrednio z budynkiem.
Okna z PCV , na podłogach panele, na ścianach gładzie gipsowe - mieszkanie do odświeżenia lub remontu według preferencji. Ogrzewanie jak i ciepła woda z sieci miejskiej. Mieszkanie zlokalizowane jest w środkowej części budynku co sprawia, że jest ciepłe.
Ekspozycja dwustronna - południe i północ. Czynsz wynosi około 560 zł na 2 osoby - zawiera zaliczki na fundusz remontowy oraz eksploatacyjny.
Świetna lokalizacja - cicha i spokojna!!! spacerem 3 minuty do przystanku MPK z którego można dotrzeć w każdą część Krakowa. W pobliżu liczna infrastruktura handlowo-usługowa, szkoła, przedszkole, żłobek, galeria Bonarka, Castorama, siłownia, punkt apteczny - z okna rozpościera się widok na park oraz zielone alejki. Blisko wyjazd na obwodnice na A4 i Zakopiankę.
Zapraszamy do oglądania!
KONTAKT W SPRAWIE OFERTY:
Anna Tarczyńska
Tel: 533 535 560
Biuro Nieruchomości Spektrum s.c ; ul.Lea 16/1 30-048 Kraków .
Pośrednik odpowiedzialny zawodowo za wykonanie umowy pośrednictwa - Nr Licencji 5989. Oferty zamieszczone na naszych stronach internetowych nie stanowią oferty w rozumieniu kodeksu cywilnego.