Mieszkanie na sprzedaż















Szczegóły ogłoszenia
- Symbol oferty SPEK-MS-3799
- Typ oferty mieszkanie na sprzedaż
- Cena 459 000 zł
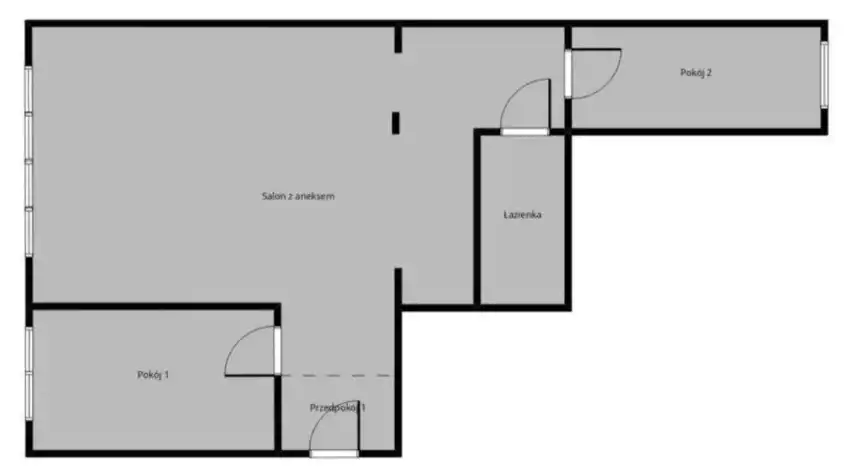
- Charakterystyka mieszkania 44 m2, 3 pokoje
- Budynek blok; rok budowy: 1965
- Rozkład mieszkania 4p piętro
- Media Ogrzewanie: miejskie; Woda: ciepła - miejska; Gaz: jest
- Balkon drzwi balkonowe
- Instalacje nowe
- Okna PCV
- Stan lokalu Po remoncie
- Technologia budowlana wielka płyta
- Umeblowanie brak
Lokalizacja
- Adres małopolskie, Kraków, Nowa Huta
Opis nieruchomości
POLECAMY !!! 3 POKOJOWE MIESZKANIE PO GENERALNYM REMONCIE! BIEŃCZYCE D.H WANDA!
Posiadamy do sprzedaży 3 pokojowe mieszkanie o powierzchni 44m2 na os. Kazimierzowskim – dzielnica Nowa Huta. Lokal usytuowany jest na 4 piętrze w 4 piętrowym budynku (lata 60) po termomodernizacji.
Mieszkanie składa się z przestronnego Salonu z Aneksem Kuchennym (21m2), 2 niezależnych Sypialni (8m2 i 10m2), Łazienki, oraz dwóch Przedpokoi.
Świetny układ pomieszczeń i dwustronna ekspozycja sprawiają, że mieszkanie jest bardzo jasne i przytulne, widok z okien rozpościera się na zielone osiedle.
Do mieszkania przynależy również Piwnica, na każdym piętrze dodatkowo suszarnia o użytku wspólnego, a miejsca parkingowe dla mieszkańców sąsiadują bezpośrednio z budynkiem.
W mieszkaniu przeprowadzono generalny remont. Wymieniono wszystkie instalacje, okna, drzwi i podłogi. Mieszkanie gotowe do wejścia i własnego umeblowania . Okna PCV. spółdzielnia mieszkaniowa planuje w niedalekiej przeszłości doprowadzenie ciepłej wody z sieci miejskiej.
Czynsz wynosi około 430zł, zawiera zaliczki na fundusz remontowy oraz eksploatacyjny.
Ogrzewanie z sieci miejskiej, ciepła woda z dwufunkcyjnego pieca gazowego.
Świetna lokalizacja - cicha i spokojna!!! spacerem 3 minuty do przystanku MPK z którego można dotrzeć w każdą część Krakowa. W pobliżu liczna infrastruktura handlowo-usługowa, szkoła, przedszkole, żłobek, siłownia, punkt apteczny
- przystanki komunikacji miejskiej (tramwajowe i autobusowe) 300m;
- Planty Bieńczyckie 250m;
- dyskont Aldi 250m;
- DH Wanda 300m;
- nowoczesna siłownia 300m;
- Pizza Hut 300m;
- kawiarnie i restauracje 300m;
- CH Czyżyny 1,5km;
Zapraszamy do oglądania!
KONTAKT W SPRAWIE OFERTY:
Anna Tarczyńska
Tel: 533 535 560
Biuro Nieruchomości Spektrum s.c ; ul.Lea 16/1 30-048 Kraków . Pośrednik odpowiedzialny zawodowo za wykonanie umowy pośrednictwa - Nr Licencji 5989. Oferty zamieszczone na naszych stronach internetowych nie stanowią oferty w rozumieniu kodeksu cywilnego.