Mieszkanie na sprzedaż












Szczegóły ogłoszenia
- Symbol oferty SPEK-MS-3902
- Typ oferty mieszkanie na sprzedaż
- Cena 490 000 zł
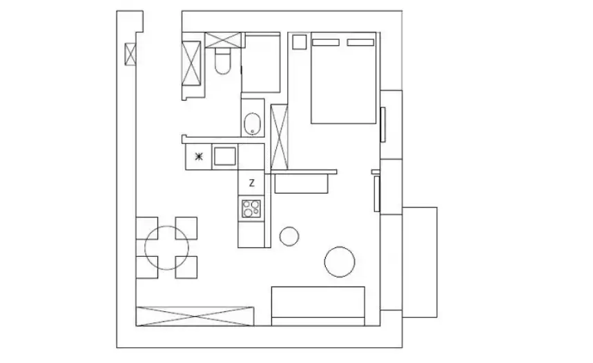
- Charakterystyka mieszkania 37 m2, 2 pokoje
- Budynek blok; rok budowy: 1950
- Rozkład mieszkania 4p piętro
- Balkon jest
- Okna PCV
- Stan lokalu wysoki standard
- Technologia budowlana cegła
- Umeblowanie częściowo umeblowane
Lokalizacja
- Adres małopolskie, Kraków, Nowa Huta
Opis nieruchomości
POLECAMY !!! 2 POKOJOWE MIESZKANIE DO WEJŚCIA ! W STYLU PRL!
Posiadamy do sprzedaży 2 pokojowe mieszkanie o powierzchni 37m2 na os. Zgody – dzielnica Nowa Huta. Lokal usytuowany jest na ostatnim piętrze w 4 piętrowym budynku (lata 50) po termomodernizacji.
Mieszkanie składa się z Salonu połączonego z Aneksem Kuchennym, Sypialni, Łazienki z wc i Przedpokój.
Świetny układ pomieszczeń i ekspozycja (wschód) sprawiają, że mieszknie jest bardzo jasne i przytulne, widok z okien rozpościera się na zielone osiedle.
Do mieszkania przynależy Piwnica i Balkon a miejsca parkingowe dla mieszkańców sąsiadują bezpośrednio z budynkiem.
Lokal jest po generalnym remoncie gotowe do zamieszkania. Wykonana została instalacja elektryczna i wodno-kanalizacyjna. Mieszkanie jest piękne i oryginalnie urządzone w nawiązującym do swojego położenia stylu vintage z wykorzystaniem autentycznych mebli z epoki. Mieszkanie zostało wykończone w wysokim standardzie - na podłodze nowy dębowy parkiet, w łazience ogrzewanie podłogowe.
Czynsz wynosi około 300zł, zawiera zaliczki na fundusz remontowy oraz eksploatacyjny.
Ogrzewanie z sieci miejskiej.
Świetna lokalizacja - cicha i spokojna!!! spacerem 3 minuty do przystanku MPK z którego można dotrzeć w każdą część Krakowa. W pobliżu liczna infrastruktura handlowo-usługowa, szkoła, przedszkole, żłobek, siłownia, punkt apteczny
Zapraszamy do oglądania!
KONTAKT W SPRAWIE OFERTY:
Anna Tarczyńska
Tel: 533 535 560
Biuro Nieruchomości Spektrum s.c ; ul.Lea 16/1 30-048 Kraków . Pośrednik odpowiedzialny zawodowo za wykonanie umowy pośrednictwa - Nr Licencji 5989. Oferty zamieszczone na naszych stronach internetowych nie stanowią oferty w rozumieniu kodeksu cywilnego.