Mieszkanie na sprzedaż
580 000 zł
53 m2





1 / 5
Szczegóły ogłoszenia
- Symbol oferty HEHE-MS-3811
- Typ oferty mieszkanie na sprzedaż
- Cena 580 000 zł
- Charakterystyka mieszkania 53.07 m2, 2 pokoje
- Budynek blok; rok budowy: 1960
- Rozkład mieszkania 1p piętro
- Media Ogrzewanie: piec dwufunkcyjny; Woda: ciepła - piecyk; Gaz: jest
- Balkon jest
- Czynsz Czynsz letni: 250 zł
- Dojazd asfalt
- Instalacje ELEKTRYCZNA, GAZOWA
- Okna PCV
- Otoczenie działki niezabudowane
- Stan lokalu do odnowienia
- Technologia budowlana cegła
Lokalizacja
- Adres małopolskie, Kraków
Opis nieruchomości
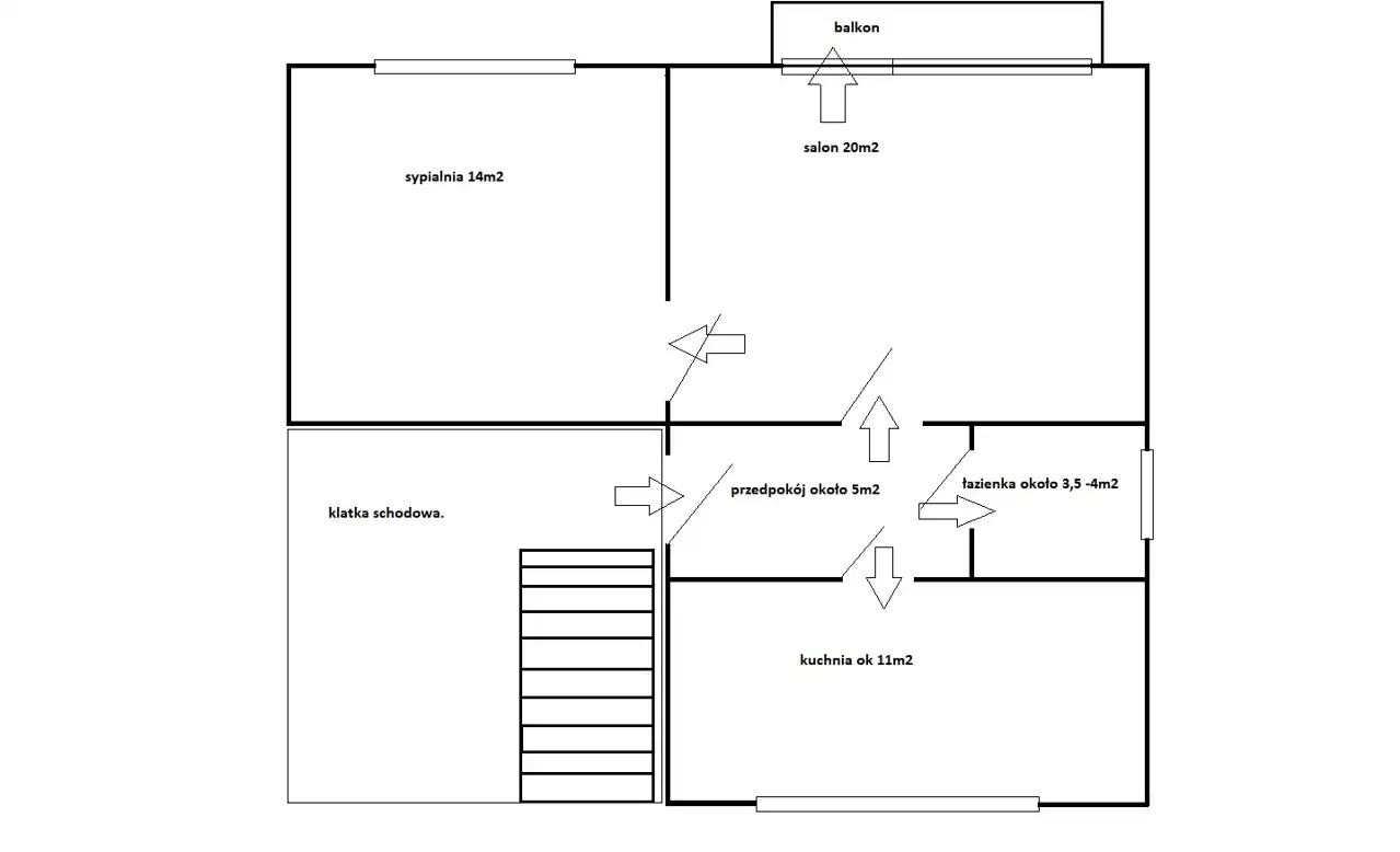
Polecamy!! - do sprzedania 2-pokojowe mieszkanie 53,07 m2 na ul. Balickiej - dzielnica: (Bronowice).
Mieszkanie usytuowane jest na 1 - piętrze w 2 piętrowym bloku z okoł 1960 roku.
Mieszkanie jest do odnowienia - obecnie trwają prace w związku z wymianą instalacji grzewczej (Piec + Grzejniki) oraz instalacji elektrycznej.
Mieszkanie składa się z przedpokoju ,salonu dziennego ; osobnej jasnej kuchnio - jadalni ,sypialni , łazienki z WC; balkonu oraz 2-piwnic.
Całkowity metraż nieruchomości wpisany do księgi wieczystej wynosi 67,2 m2 ; w skład tego metrażu wchodzi mieszkanie 53,07m2 + piwnica 14,13m2.
Dodatkowo istnieje możliwość korzystania z dodatkowej komórki lokatorskiej ok 4-5m2.
Ogrzewanie i ciepła woda z pieca 2-funkcyjnego; prąd w trakcie wymiany na (3 fazy 380V); Czynsz wynosi 250 zł miesięcznie.
Ekspozycja 2 -stronna , teren ogrodzony. Lokalizacja bardzo spokojna w pobliżu niezbędna infrastruktura handlowo - usługowa.
Zapraszamy do oglądania! KONTAKT W SPRAWIE OFERTY: 608-596-169
Biuro Nieruchomości Spektrum s.c ; ul.Lea 16/1 30-048 Kraków .
Pośrednik odpowiedzialny zawodowo za wykonanie umowy pośrednictwa - Nr Licencji 5989.
Przed prezentacją obowiązuje podpisanie standardowej umowy pośrednictwa.
Oferty zamieszczone na naszych stronach internetowych nie stanowią oferty w rozumieniu kodeksu cywilne
Mieszkanie usytuowane jest na 1 - piętrze w 2 piętrowym bloku z okoł 1960 roku.
Mieszkanie jest do odnowienia - obecnie trwają prace w związku z wymianą instalacji grzewczej (Piec + Grzejniki) oraz instalacji elektrycznej.
Mieszkanie składa się z przedpokoju ,salonu dziennego ; osobnej jasnej kuchnio - jadalni ,sypialni , łazienki z WC; balkonu oraz 2-piwnic.
Całkowity metraż nieruchomości wpisany do księgi wieczystej wynosi 67,2 m2 ; w skład tego metrażu wchodzi mieszkanie 53,07m2 + piwnica 14,13m2.
Dodatkowo istnieje możliwość korzystania z dodatkowej komórki lokatorskiej ok 4-5m2.
Ogrzewanie i ciepła woda z pieca 2-funkcyjnego; prąd w trakcie wymiany na (3 fazy 380V); Czynsz wynosi 250 zł miesięcznie.
Ekspozycja 2 -stronna , teren ogrodzony. Lokalizacja bardzo spokojna w pobliżu niezbędna infrastruktura handlowo - usługowa.
Zapraszamy do oglądania! KONTAKT W SPRAWIE OFERTY: 608-596-169
Biuro Nieruchomości Spektrum s.c ; ul.Lea 16/1 30-048 Kraków .
Pośrednik odpowiedzialny zawodowo za wykonanie umowy pośrednictwa - Nr Licencji 5989.
Przed prezentacją obowiązuje podpisanie standardowej umowy pośrednictwa.
Oferty zamieszczone na naszych stronach internetowych nie stanowią oferty w rozumieniu kodeksu cywilne
Nota prawna
Opis oferty zawarty na stronie internetowej sporządzany jest na podstawie oględzin nieruchomości oraz informacji uzyskanych od właściciela, może podlegać aktualizacji i nie stanowi oferty określonej w art. 66 i następnych K.C.
Kalkulator kredytowy
Formularz kontaktowy