Mieszkanie na sprzedaż








Szczegóły ogłoszenia
- Symbol oferty SPEK-MS-3384
- Typ oferty mieszkanie na sprzedaż
- Cena 877 250 zł
- Charakterystyka mieszkania 72.5 m2, 3 pokoje
- Rozkład mieszkania parter piętro
Lokalizacja
- Adres małopolskie, Kraków
Opis nieruchomości
Opis mieszkania
Nowoczesny i komfortowy 3-pokojowy apartament, po generalnym remoncie.
Mieszkanie znajduje się na parterze zadbanego, czterokondygnacyjnego budynku z 2003.
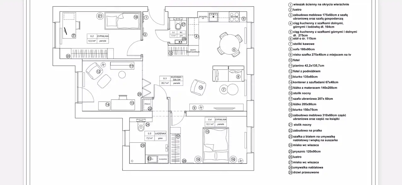
Na powierzchnię 72m2 znajdują się;
- dwie sypialnie,
- duża (7 m2) łazienka z oknem,
- przestronny salon połączony z kuchnią,
- przedpokojem
- dodatkową powierzchnią do dowolnego zaaranżowania (obecnie miejsce do pracy, w przyszłości jest możliwość wydzielenia kolejnego pokoju z oknem).
Dodatkowym atutem jest otoczony zielenią, piękny i duży balkon, oraz pojemna zabudowa w przedpokoju typu Komandor, mieszcząca między innymi pralkę i suszarkę. Apartament wyposażony jest w rolety antywłamaniowe i przygotowany jest do podłączenia instalacji alarmowej. Do mieszkania przynależy duża piwnica (2 ciągi szaf + miejsce na rowery:)). Apartament jest po generalnym remoncie wykonanym w 2019 r., na podstawie aranżacji, przygotowanej przez architekta, zostało wykończone w designerskim stylu z najwyższą starannością, przy wykorzystaniu wysokiej jakości materiałów, z zadbaniem o najdrobniejszy szczegół. Właściciele zostawiają do Państwa dyspozycji całkowicie umeblowane mieszkanie, m.in. z pełnym wyposażeniem łazienki, kuchnią IKEA (z pozostającym na gwarancji sprzętem AGD). Mieszkanie nie wymaga absolutnie żadnych nakładów.
Lokalizacja
Apartament znajduje się na spokojnym i zielonym osiedlu między ulicą Kapelanka, a Skałkami Twardowskiego, 2 min od sklepu Żabka oraz przystanku autobusowego i tramwajowego Słomiana. Budynek jest ogrodzony. Wokół dużo darmowych miejsc parkingowych. W okolicy piekarnie, apteki, szkoły, centrum jogi i inne centra usługowo-handlowe. Niedaleko od biurowców HSBC i State Street. Bliskość do centrum miasta przy jednoczesnej bliskości terenów zielonych, pozwala na łatwy odpoczynek po pracy. Z mieszkania idzie się 15 min do Bulwarów Wiślanych oraz 5 min od terenów zielonych - Skałek Twardowskiego i Zakrzówka (z nowoczesnym kompleksem basenów odkrytych).
Koszty utrzymania
Czynsz administracyjny (ogrzewanie, fundusz remontowy, utrzymanie części wspólnych, wywóz śmieci): około 500 PLN, woda i prąd: według zużycia, Internet UPC dostępny w lokalu.
CENA: 877 250 ZŁ
KONTAKT W SPRAWIE OFERTY: Patrycja Kuczma
537-440-045
Biuro Spektrum s.c ; ul. Lea 16/1 30-048 Kraków
Finansuj zakup nieruchomości z naszymi specjalistami.
Pośrednik odpowiedzialny zawodowo za wykonanie umowy pośrednictwa - Nr Licencji 5989
Więcej ofert na stronie:
https://www.spektrum.krakow.pl/
ZAPRASZAMY!
Oferty zamieszczone na naszych stronach internetowych nie stanowią oferty w rozumieniu kodeksu cywilnego